Riello FASTECH 24 KIS
Riello FASTECH 24 KIS
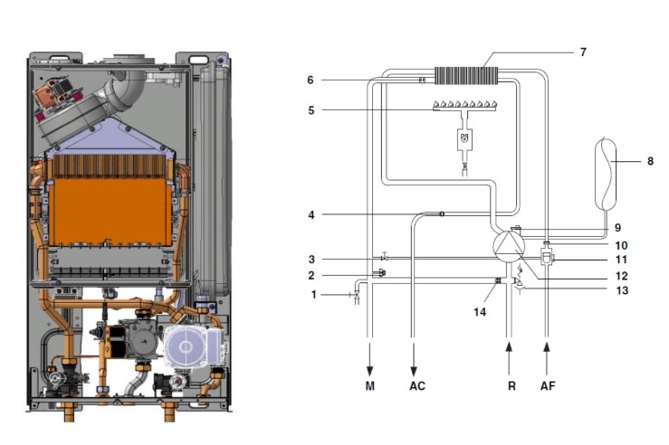
Серия "FASTECH" с битермическим теплообменником. Габаритные размеры: 715*405*248 мм. Мощность 7,5÷23,9 кВт, турбированный газовый котел.
- КПД: 92,6%
- Тип дымохода: дымоходный
- Тип камеры згорания: открытая
- Диаметр дымохода: 130 мм
- Тепловая мощность: 23,9 кВт
- Макс. площадь: 265 м.кв.
- Производительность ГВС: 14,1 л/мин.
- Габариты (ВхШхГ): 715*405*248 мм
Fastech - это серия настенных газовых котлов с битермическими теплообменниками, предназначенных для установки в многоквартирных домах, частных коттеджах и других жилых и производственных помещениях. благодаря простоте конструкции, котлы серии Fastech являются недорогими и надежными и удовлетворяют потребности в отоплении и ГВС малых и средних домов. На рынке Украины представлены две модели котлов серии Fastech - дымоходные с открытой камерой сгорания мощностью 24 кВт. и турбированные с закрытой камерой сгорания, мощностью 24 кВт.

Технические особенности
• битермический теплообменник;
• наличие моделей с открытой и закрытой камерой сгорания;
• специальная функция C.T.R. (Автоматический контроль температуры нагрева);
• терморегуляция встроенная в стандартную комплектацию;
• расширительный бак на 8 литров;
• специальная функция для работы с антифризом;
• функция приоритета ГВС;
• плавная регулировка мощности (модулированный горелка);
• Система самодиагностики с отображением ошибок на дисплей
• встроенная система защиты от замерзания и блокировки насоса;
• возможность подключения комнатных термостатов, любых элементов и систем типа «Умный дом»;
• возможность перенастройки под сжиженный газ.

| Система теплообменников | битермический |
| Вид топлива | газ |
| Регион производства | импортные |
| Тип установки | навесной |
| Тип котла | турбированный (бездымоходный) |
| Производитель | Riello |
| Количество контуров | двухконтурный |
| Мощность | 24 КВт |